☆安佐北区大林4丁目 新規分譲☆
◆ご成約特典あり!◆
住宅オプションや家電など選べるプレゼント♪
ローンシミュレーションこの物件を購入した場合の、月々の支払い価格の一例です。借り入れを保証するものではございません。
- 返済期間
-
- 金利
-
- ボーナス時の増額(1回分)
-
- 借入金額:
-
- 頭金:
-

- 毎月の返済額:
(※元利均等方式 金利5.00%まで ※返済年数5~50年まで入力できます)
(※ボーナスは年2回で計算しています。1000万円まで入力できます)
(※物件購入時、その他諸費用が発生する場合がございます)
担当者のコメント 西洋トラスト株式会社

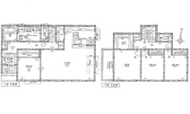
- ■大林小学校まで徒歩3分で通学安心☆
■住宅性能評価取得♪全部屋収納有り♪
■リビング隣接洋風和室有り◎
■ひとり部屋が欲しいお子様の夢も叶う4LDK!
【低金利で一つにまとめる住宅ローン】
引越しを機に家電費用も住宅ローンに組入可能☆
頭金・諸費用のない方でもまずはご相談ください♪
車等の個人ローンも一本化して月々支払いを減額☆
◇◆西洋トラスト株式会社◆◇
住宅ローンに不安がある方、一度断られた方、お気軽にご相談ください
ご自宅までの送迎いたします
他社で掲載されている物件情報もまとめて資料をお送りします
是非一度条件をお聞かせください♪
物件概要
【新築一戸建】 物件番号:92528929 情報更新日:2025年11月15日 次回更新予定日:2025年11月29日| 所在地 | 広島県広島市安佐北区大林3丁目9- | ||
|---|---|---|---|
| 交通 | |||
| 間取り/詳細 | 4LDK/ | 建物面積(坪数) | 102.06㎡(30.87坪) |
| 価格 | 1,680万円 | ||
| 駐車場/月額料金 | -/- | ||
| 土地の敷金/保証金 | -/- | 借地料/借地期間 | -/- |
| 土地権利 | 所有権 | 土地面積(坪数) | 153.64㎡(46.47坪) |
| 傾斜地部分面積 | - | 路地状敷地 | - |
| 私道負担面積/セットバック | -/無 | 高圧線下面積 | - |
| 地目/地勢 | -/- | 接道状況 | - |
| 建ぺい率/容積率 | -/- | 用途地域 | 第一種住居 |
| 都市計画 | - | 種別/構造 | 新築一戸建/木造 |
| 階建 | 2階建 | 築年月(築年数) | 2025年 2月 (新築) |
| 総区画数/販売区画数 | 2区画/- | 向き | - |
| 現況 | 完成済み | その他の法令上の制限 | - |
| 取引態様/引渡時期 | 一般媒介/相談 | 建築確認番号 | 第R06SHC120273他号 |
| 物件番号 | 92528929 | 取引条件の有効期限 | 2025年11月29日 |
| 設備条件 |
|
||
| 取扱会社 |
|
||
※地図上に表示される物件の位置は付近住所に所在することを表すものであり、実際の物件所在地とは異なる場合がございます。











