☆安芸郡熊野町東山 新規分譲☆
ぜひ一度見ていただきたい、「☆安芸郡熊野町東山 新規分譲☆」です。歩いて346mの場所に、Aコープ 熊野団地店があります。一生に一度のマイホーム探しは、ぜひ新築戸建てで。LDKが15帖以上の物件です。これから先、どんなお住まいで生活をしたいですか。あなたの希望にかなうお住まい探しを、ぜひ当社にお任せください。当社では様々な不動産をご用意しております。
-
ローンシミュレーションこの物件を購入した場合の、月々の支払い価格の一例です。借り入れを保証するものではございません。
- 返済期間
-
- 金利
-
- ボーナス時の増額(1回分)
-
- 借入金額:
-
- 頭金:
-

- 毎月の返済額:
(※元利均等方式 金利5.00%まで ※返済年数5~50年まで入力できます)
(※ボーナスは年2回で計算しています。1000万円まで入力できます)
(※物件購入時、その他諸費用が発生する場合がございます)
情報の見方担当者のコメント 西村彰紘

- マイホームは、一生に一度の高価な買い物です。お客様の期待を超えるご提案ができるように、全力でお手伝いさせて頂きます。
ポイント・特徴
物件概要
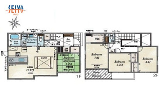
【新築一戸建】 物件番号:100450568 情報更新日:2026年01月19日 次回更新予定日:2026年02月02日所在地 広島県安芸郡熊野町東山 交通 間取り/詳細 5LDK/
1F 17.87LDK 5.25洋和 土間収納2F 7洋 6洋 5.25洋 WIC トイレ建物面積(坪数) 108.26㎡(32.74坪) 価格 2,990万円 駐車場/月額料金 有(3台)/0円 3台可(車種による)・表記建物面積はインナーバルコニー部分4.76㎡含む 土地の敷金/保証金 -/- 借地料/借地期間 -/- 土地権利 所有権 土地面積(坪数) 170.82㎡(51.67坪) 傾斜地部分面積 - 路地状敷地 - 私道負担面積/セットバック -/済 高圧線下面積 - 地目/地勢 -/- 接道状況 -(東 公道 3.6m) 建ぺい率/容積率 60%/200% 用途地域 第一種中高層住居専用 都市計画 市街化区域 種別/構造 新築一戸建/木造 階建 2階建 築年月(築年数) 2026年 1月 (予定) 総区画数/販売区画数 1区画/1区画 向き - 現況 未完成 その他の法令上の制限 - 取引態様/引渡時期 一般媒介/相談 建築確認番号 第R07SHC116531号 物件番号 100450568 取引条件の有効期限 2026年02月02日 設備条件 - バルコニー
- 公営水道
- 公共下水
- オール電化
- 駐車3台可
- トイレ2ヶ所
- ウォークインクロゼット
備考 歩いて346mの場所に、Aコープ 熊野団地店があります。生活に欠かせないスーパーも、毎日通いやすい場所にあります。こちらの物件の間取りは5LDKとなっており、室内も広々です。オール電化の住宅です。住み良い環境が整っている安芸郡熊野町で新生活を始めるのであれば、当社で不動産探しを行ってください。まずはお問い合わせからお待ちしております。 取扱会社 - 西洋トラスト株式会社
- 広島県広島市中区本川町3丁目1-23 アーバンウィング広島 1階
- TEL:0120-714-213
- 広島県知事 (3) 第9954号
※地図上に表示される物件の位置は付近住所に所在することを表すものであり、実際の物件所在地とは異なる場合がございます。
物件お問い合わせ
- 掲載物件数
-
件
- 本日の更新件数
-
件
価格と住所の近い物件
- ☆熊野町東山 新規分譲☆
- 2,990万円 5LDK/108.89㎡
- 広島県安芸郡熊野町東山
- 呉線「矢野」駅 徒歩73分
- ☆安芸郡熊野町出来庭10丁目
- 3,180万円 4LDK/207.67㎡
- 広島県安芸郡熊野町出来庭10丁目
- 呉線「矢野」駅 徒歩74分
- ☆安芸郡熊野町出来庭7丁目 新築分譲☆
- 2,680万円 4LDK/105.16㎡
- 広島県安芸郡熊野町出来庭7丁目





















