広島市佐伯区薬師が丘2丁目の新築一戸建
2駅利用できる場所にあるので利便性が高いです。日常生活で利用頻度の高い水回りだからこそ、使い勝手のいいシステムキッチンを選んでみませんか。浴室に窓があります。食器洗乾燥機は食後の家事の時間短縮に役立ちます。これからの生活を、今までよりも快適なものにしませんか。まずはお住まいをよりよいものにしていきましょう。ぜひ当社での不動産探しをご検討ください。
ローンシミュレーションこの物件を購入した場合の、月々の支払い価格の一例です。借り入れを保証するものではございません。
- 返済期間
-
- 金利
-
- ボーナス時の増額(1回分)
-
- 借入金額:
-
- 頭金:
-

- 毎月の返済額:
(※元利均等方式 金利5.00%まで ※返済年数5~50年まで入力できます)
(※ボーナスは年2回で計算しています。1000万円まで入力できます)
(※物件購入時、その他諸費用が発生する場合がございます)
担当者のコメント 西村彰紘

- 3口コンロが付いているので、3つの料理を同時に進められて時短につながります。洗面台にこだわる方にもご満足いただける設計になっております。2024年10月築で地域にも馴染んだ物件でもあり、住環境も良好。建物面積100.94平米で広々している物件です。快適なお住まいを見つけて、新しい生活をスタートさせましょう。これから先のあなたの生活を豊かにする不動産に出会えます。ぜひご検討ください。
ポイント・特徴
物件概要
【新築一戸建】 物件番号:92520583 情報更新日:2026年03月05日 次回更新予定日:2026年03月19日| 所在地 | 広島県広島市佐伯区薬師が丘2丁目 | ||
|---|---|---|---|
| 交通 | |||
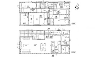
| 間取り/詳細 | 4LDK/ | 建物面積(坪数) | 100.94㎡(30.53坪) |
| 価格 | 2,690万円 | ||
| 駐車場/月額料金 | -/- | ||
| 土地の敷金/保証金 | -/- | 借地料/借地期間 | -/- |
| 土地権利 | 所有権 | 土地面積(坪数) | 119.51㎡(36.15坪) |
| 傾斜地部分面積 | - | 路地状敷地 | - |
| 私道負担面積/セットバック | -/無 | 高圧線下面積 | - |
| 地目/地勢 | 宅地/- | 接道状況 | -(南西 5.9m) |
| 建ぺい率/容積率 | 50%/100% | 用途地域 | 第一種低層住居専用 |
| 都市計画 | - | 種別/構造 | 新築一戸建/木造 |
| 階建 | 2階建 | 築年月(築年数) | 2024年 10月 (新築) |
| 総区画数/販売区画数 | 2区画/2区画 | 向き | - |
| 現況 | 完成済み | その他の法令上の制限 | - |
| 取引態様/引渡時期 | 一般媒介/即時 | 建築確認番号 | 第R06認広建セ00069号 |
| 物件番号 | 92520583 | 取引条件の有効期限 | 2026年03月19日 |
| 設備条件 |
|
||
| 備考 | コチラの物件は、新築の戸建て物件です。新生活を新築で始めませんか。3口コンロが付いているので、3つの料理を同時に進められて時短につながります。食器洗乾燥機は食後の家事の時間短縮に役立ちます。新築物件で新たな生活をスタートさせてみませんか。夢のマイホームを広島市佐伯区の広島電鉄宮島線井口付近で探しましょう。きっと素敵な一戸建てが見つかりますので、まずは当社までお問い合わせ下さい。 | ||
| 取扱会社 |
|
||
※地図上に表示される物件の位置は付近住所に所在することを表すものであり、実際の物件所在地とは異なる場合がございます。











