☆西区己斐大迫2丁目 新規分譲☆
こだわりで選びたい方におすすめ。広島市西区エリアで住まいをお探しなら「☆西区己斐大迫2丁目 新規分譲☆」。浴室乾燥機のあるお風呂場は洗濯物を干すときにも便利です。システムキッチン付きの物件です。ご好評の新築物件で、快適な生活をおくりましょう。お客様によって希望とする条件は異なります。当社スタッフは希望条件をお伺いした上で、不動産を紹介しております。
-
ローンシミュレーションこの物件を購入した場合の、月々の支払い価格の一例です。借り入れを保証するものではございません。
- 返済期間
-
- 金利
-
- ボーナス時の増額(1回分)
-
- 借入金額:
-
- 頭金:
-

- 毎月の返済額:
(※元利均等方式 金利5.00%まで ※返済年数5~50年まで入力できます)
(※ボーナスは年2回で計算しています。1000万円まで入力できます)
(※物件購入時、その他諸費用が発生する場合がございます)
情報の見方担当者のコメント 西村彰紘

- マイホームは、一生に一度の高価な買い物です。お客様の期待を超えるご提案ができるように、全力でお手伝いさせて頂きます。
ポイント・特徴
物件概要
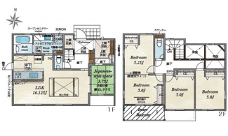
【新築一戸建】 物件番号:101599856 情報更新日:2026年03月05日 次回更新予定日:2026年03月19日所在地 広島県広島市西区己斐大迫2丁目 交通 間取り/詳細 4LDK/ 建物面積(坪数) 109.35㎡(33.07坪) 価格 3,690万円 駐車場/月額料金 有/- 土地の敷金/保証金 -/- 借地料/借地期間 -/- 土地権利 所有権 土地面積(坪数) 185.65㎡(56.15坪) 傾斜地部分面積 - 路地状敷地 - 私道負担面積/セットバック -/無 高圧線下面積 - 地目/地勢 宅地/- 接道状況 -(北 公道 4.0m) 建ぺい率/容積率 50%/100% 用途地域 第一種低層住居専用 都市計画 市街化区域 種別/構造 新築一戸建/木造 階建 2階建 築年月(築年数) 2026年 2月 (新築) 総区画数/販売区画数 1区画/1区画 向き - 現況 完成済み その他の法令上の制限 景観法/宅地造成及び特定盛土等規制法 取引態様/引渡時期 一般媒介/即時 建築確認番号 第R07SHC120354号 物件番号 101599856 取引条件の有効期限 2026年03月19日 設備条件 - ペット相談
- 陽当り良好
- 閑静な住宅地
- 建設住宅性能評価書付
- カードキー
- 新婚さん向け
- ファミリー向け
- キャンペーン
- フローリング
- 公営水道
- 公共下水
- オール電化
- 24時間換気システム
- インナーバルコニー
- 食器洗い乾燥機
- システムキッチン
- 対面式キッチン
- バス・トイレ別
- 追焚機能浴室
- 浴室乾燥機
- 温水洗浄便座
- トイレ2ヶ所
- 浴室1坪以上
- 独立洗面台
- 床下収納
- 収納豊富
- TVモニタ付インターホン
- 複層ガラス
- ディンプルキー
設備(その他) オール電化住宅・太陽光パネル搭載、L 取扱会社 - 西洋トラスト株式会社
- 広島県広島市中区本川町3丁目1-23 アーバンウィング広島 1階
- TEL:0120-714-213
- 広島県知事 (3) 第9954号
※地図上に表示される物件の位置は付近住所に所在することを表すものであり、実際の物件所在地とは異なる場合がございます。
物件お問い合わせ
- 掲載物件数
-
件
- 本日の更新件数
-
件
価格と住所の近い物件
- ☆山田新町1丁目 新規分譲☆
- 3,496万円 4LDK/115.51㎡
- 広島県広島市西区山田新町1丁目
- 広島電鉄宮島線「古江」駅 徒歩50分
- ☆西区新庄町 新築分譲☆
- 3,350万円 3LDK/95.22㎡
- 広島県広島市西区新庄町
- 可部線「安芸長束」駅 徒歩18分
- ☆西区古江西町 新築分譲☆
- 4,090万円 3LDK/99.63㎡
- 広島県広島市西区古江西町
- 広島電鉄宮島線「古江」駅 徒歩11分
- ☆西区庚午中1丁目 新築分譲☆
- 4,580万円 3LDK/101.73㎡
- 広島県広島市西区庚午中1丁目
- 広島電鉄宮島線「古江」駅 徒歩9分
- ☆南観音8丁目 新規分譲☆
- 5,180万円 3LDK/98.82㎡
- 広島県広島市西区南観音8丁目
- 広島電鉄江波線「舟入川口町」駅 徒歩14分


















